A fabulous opportunity to purchase a spacious commercial premises, (approx. 53.96m2), which was previously utilised as a café, located on the High Street within the Town of Newburgh. The premises benefits from two large window formations to front. Offering potential for alternative commercial uses, subject to the necessary Local Authority consents.
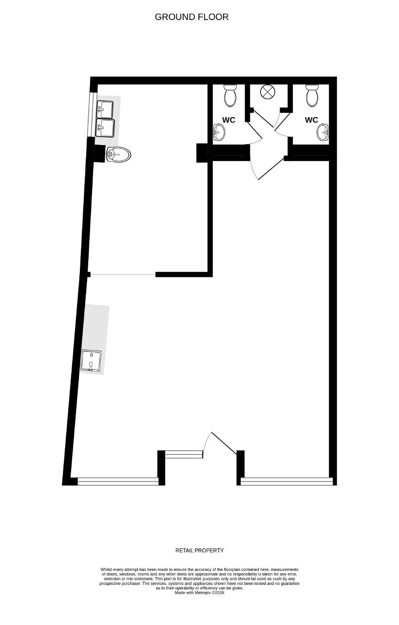
On entering the property, you gain access into a spacious main area with wooden flooring and two large window formations to front allowing an abundance of natural light. Within the room there are fitted wall and floor mounted units, small wash hand basin and a counter, which were previously utilised to serve customers. Ample space for approximately 23 seated customers. However, with some reconfiguration of the main area, there is potential to increase this by around 6 additional covers, subject to layout changes. A door opens onto a rear hall which offers access to two separate wcs and a cupboard housing the water tank.
Men's wc includes pedestal wash hand basin and wc. Splash back tiling to sink area. Fitted mirror and vinyl flooring.
Ladies wc includes pedestal wash hand basin and wc. Splash back tiling to basin area. Fitted mirror. Vinyl flooring.
There is a second area which is partially open plan to the main area and was previously utilised as a kitchen area. Within this area there is a small wash hand basin and a double sink unit. Window to side.
Extras Included In Sale
Within the former kitchen area - a double sink unit, wash hand basin.
Within the main front area - a display counter, one small wash hand basin, entrance heater, wall mounted electric heater, u-shaped table cabinet (with substantial internal storage for cups, plates and miscellaneous items).
Approx. Size - 53.96m2
Rateable value - £6,100 - Single Property SBB (Small Business Bonus Scheme) Award 100 %, Net amount due £0
Glazing - Single
Heating - Electric heater above entrance door and an electric wall heater within main area.
EPC - Band G (can be found under PDF Brochure Tab)
Viewings Strictly by appointment
360 Video walk through available on request.
The coastal village of Newburgh which has a population of approx. 2,000 people, offers country and riverside walks. Local amenities include TICC library, primary schooling, GP health centre, dentist, chemist, florist, post office, Co-op, pubs and bowling club. Mobile bank service every Wednesday morning, parks outside premises, which can increase footfall. Newburgh is ideally situated for travel by car to Perth, Cupar, Dundee all within approx. 30 mins. Train stations can be found in Perth and Cupar. Lindores Abbey Distillery is approx. one mile away.
24' 0'' x 20' 6'' (7.33m x 6.26m)
14' 2'' x 8' 7'' (4.34m x 2.64m)
2' 11'' x 5' 9'' (0.9m x 1.77m)
5' 10'' x 3' 3'' (1.78m x 1.02m)
For further information on this property please call 07938 566969 or e-mail info@harleyestateagents.co.uk
MONEY LAUNDERING REGULATIONS: Intending purchasers and sellers will be asked to produce identification documentation and proof of funds via a system we pay for known as Credas (https://credas.com) Certified Digital Identity Verification Service, which is certified against the UK Government Digital Identity and Attributes Trust Framework. Via Credas we will request that you provide relevant information to allow various checks including digital identity verification. Information required from yourself for an Identity Report includes your first and last name, address and date of birth and Credas system will carry out the relevant checks/verification. Also, a photographic Identity Verification Report, which will require you to provide a current passport, driving licence or national identity card and a selfie in order to carry out a biometric analysis for verification. Along with relevant information from buyers to allow for proof of funds report. We would ask for your co-operation in order that there will be no delays.
We endeavour to provide accurate particulars from information provided by the vendor and the information provided in this brochure is believed to be correct, however, the accuracy cannot be guaranteed, they are set as a general outline only and they do not form part of any contract. All measurements, distances, floor plans and areas are approximate and for guidelines only. Whilst every attempt is made to ensure the accuracy of any floor plan, measurements of doors, windows, rooms and any other items are approximate and no responsibility is taken for any error, omission, or misstatement. The floor plan is for illustrative purposes only and should be used as such by any prospective purchaser. Any fixture, fittings mentioned in these particulars will be confirmed by the vendor if they are included in the sale or not. Please note that appliances, heating systems, services, equipment, fixtures etc have not been tested and no warranty is given or implied that these are in working order. Photographs are reproduced for general information and not be inferred that any item is included for sale with the property.



