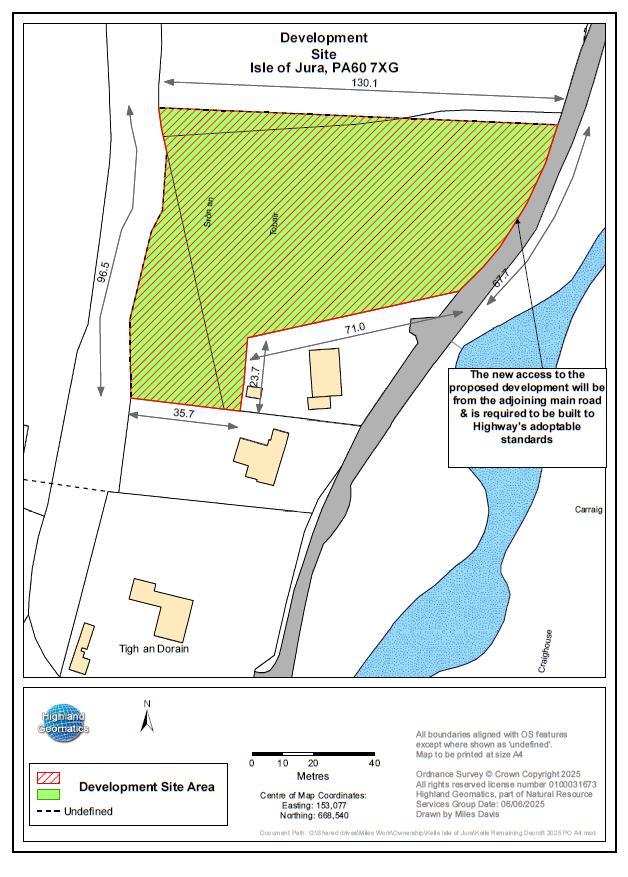
A fabulous opportunity to purchase land (approx. 0.82 Hectares (2.02 acres)) in a well-regarded residential area on the edge of the small village of Craighouse on the Island of Jura. The land offers views towards the bay and surrounding mountains, with planning in principle granted for 10 detached residential homes with the requirement of (25%) 3 properties to be affordable homes.
Outlining planning permission has been granted for;
Two x one bedroom detached bungalows.
Two x two bedroom detached bungalow.
Three x one and a half storey detached houses.
One x four bedroom wheelchair standard detached bungalow house.
Two x three bedroom one and a half storey detached houses.
All properties to benefit from parking, gardens to front, side and rear.
Planning Permission in Principle granted on 26th February 2024 with reference 21/01037/PPP Argyll & Bute Local Development Plan https://publicaccess.argyll-bute.gov.uk/online-applications/search.do?action=simple&searchType=Application
Parties wishing to discuss alternative residential development should make their own detailed planning enquiries.
Viewings are by appointment only.
Please contact ourselves to request any information you require before organising visiting the location of this plot of ground as it is the viewer(s) own responsibility to ensure that they have all the relevant information they require before organising travelling long journey to this plot.
PLEASE NOTE
The buyer(s) will be responsible for construction of the access road(s) from the existing road to the plot(s).
Mains electricity, water, drainage and BT phone/internet services will need to be routed to the plot.
Sellers & Buyer(s) will be responsible for paying there own legal costs in the sale/purchase of this plot of ground.
Whilst every effort is made to ensure accuracy of these details, please check with us on any points of especial importance to you, especially before travelling some distance to the plot.
It is the responsibility of all prospective viewers to check with ourselves prior to viewing this plot to ensure that it is still available for sale, particularly with regard to the location of this plot and long journeys or those viewings arranged some time in advance.
No responsibility can be accepted for expenses incurred in inspecting this plots and any plots/developments/properties which have been sold or withdrawn.
Sizes/measurements mentioned and indicative boundaries marked on images are for guidance/reference only and are not exact.
This plot is being sold as seen
Any error(s), exclusion or mis-statement shall not annul the sale, or entitle any party to compensation or recourse to action at law.
The plot is located North of Craighouse, which is the capital of Isle of Jura, in Argyll and Bute. Situated on the east coast at the southern end of small isles Bay, on the Sound of Jura. Local amenities in Craighouse include Jura distillery, a hotel, local doctors surgery, well regarded primary school, village shop, craft and gift shop, café, photographic studio and another spirit maker.
A wider range of amenities can be found on Islay, which can be accessed via a small car ferry from Feilon (approx. 8 miles by car away from Craighouse) to Port Askaig on Islay. Islay offers regular car ferries to the mainland and an airport offering flights to Glasgow.
The Jura Foot Passenger Ferry runs daily except Wednesdays between April and September, departing from Tayvallich (west of Lochgiphead) and arriving in the heart of Craighouse on Jura. Jura has a population of approx. 200 residents.
For further information on this property please call 07938 566969 or e-mail info@harleyestateagents.co.uk
MONEY LAUNDERING REGULATIONS: Intending purchasers and sellers will be asked to produce identification documentation and proof of funds via a system we pay for known as Credas (https://credas.com) Certified Digital Identity Verification Service, which is certified against the UK Government Digital Identity and Attributes Trust Framework. Via Credas we will request that you provide relevant information to allow various checks including digital identity verification. Information required from yourself for an Identity Report includes your first and last name, address and date of birth and Credas system will carry out the relevant checks/verification. Also, a photographic Identity Verification Report, which will require you to provide a current passport, driving licence or national identity card and a selfie in order to carry out a biometric analysis for verification. Along with relevant information from buyers to allow for proof of funds report. We would ask for your co-operation in order that there will be no delays.
We endeavour to provide accurate particulars from information provided by the vendor and the information provided in this brochure is believed to be correct, however, the accuracy cannot be guaranteed, they are set as a general outline only and they do not form part of any contract. All measurements, distances, floor plans and areas are approximate and for guidelines only. Whilst every attempt is made to ensure the accuracy of any floor plan, measurements of doors, windows, rooms and any other items are approximate and no responsibility is taken for any error, omission, or misstatement. The floor plan is for illustrative purposes only and should be used as such by any prospective purchaser. Any fixture, fittings mentioned in these particulars will be confirmed by the vendor if they are included in the sale or not. Please note that appliances, heating systems, services, equipment, fixtures etc have not been tested and no warranty is given or implied that these are in working order. Photographs are reproduced for general information and not be inferred that any item is included for sale with the property.



